搜房源
发布信息
服务热线:15601084512

客服微信>>

手机站 北京 天津 河北 辽宁 山东 其他站 发布信息

河北厂库房网> 唐山产业园出租>高新区产业园出租

出售出租唐山市高新区京唐智慧港在建花园别墅厂房

编号:148194

区域:

唐山- 高新区

类别:

产业园出租

占地面积:

150000平米

价格:

0.70元/㎡/天

房屋面积:

层高:

12米

分割面积:

500㎡ 800㎡ 1130㎡ 4000㎡

地址:

京唐智慧港盛达产业园

浏览:

张经理

详细信息

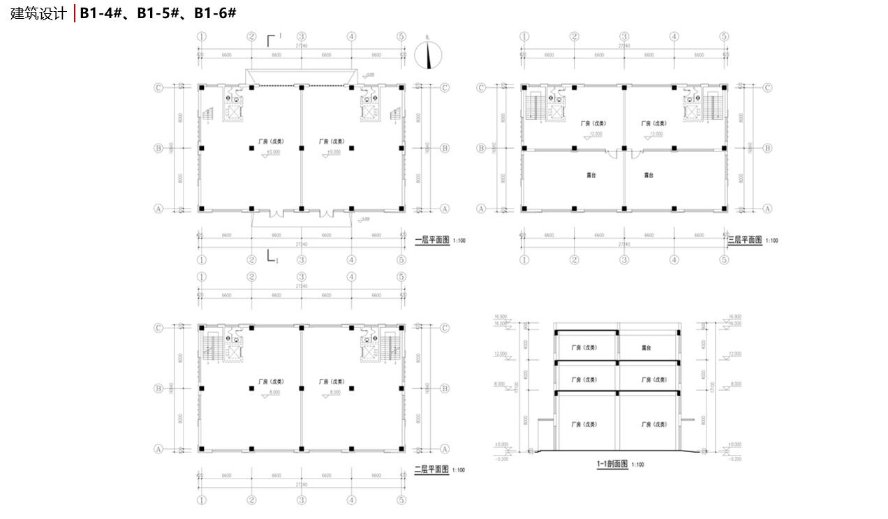
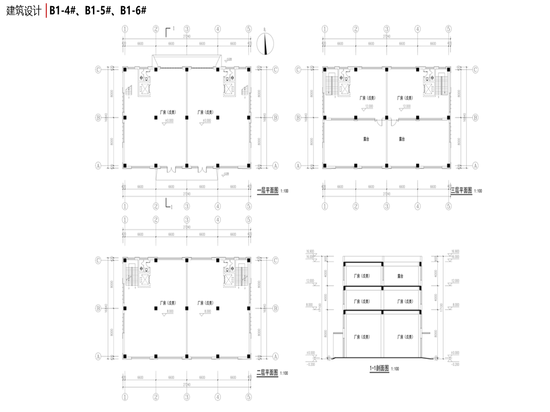
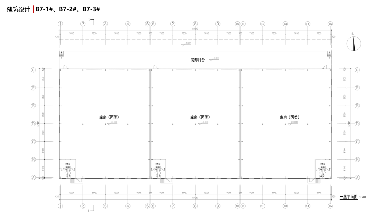
出售在建项目,独栋联排产业别墅,面积约500-1200㎡,一层8.1米,二三层4米,买2.5层赠送1.5层;标准化轻钢结构厂房,面积约1145-4000㎡,层高12米,配备装卸月台。各厂房均赠送前后各5米的绿化和车位,价格可议,现阶段接受定制。欢迎各位莅临指导。

图片展示

品牌企业

大兴区魏善庄厂库房园区招租(高台库,整租分租均可)

大兴区魏善庄厂库房园区招租(高台库,整租分租均可)

河北省定州全联科技工业园区厂房招商

河北省定州全联科技工业园区厂房招商

联东U谷-京津冀 厂房、库房、办公-可环评办照出租出售

联东U谷-京津冀 厂房、库房、办公-可环评办照出租出售

荣盛产业新城

荣盛产业新城

“和谷”系列产业园介绍

“和谷”系列产业园介绍

 地坪类别:环氧自流评.工业地坪,水泥自流评 地下车库地坪.防静电自流评.运动球场聚氨酯砂浆自流评.PVC地板

地坪类别:环氧自流评.工业地坪,水泥自流评 地下车库地坪.防静电自流评.运动球场聚氨酯砂浆自流评.PVC地板

天津宁河芦台工业园9000-15000平米厂库房出租

天津宁河芦台工业园9000-15000平米厂库房出租

相关站点

高新区厂房出租

高新区工厂出租

高新区厂库房出租

高新区库房出租

高新区仓库出租

高新区冷库出租

高新区保鲜库出租

高新区恒温库出租

高新区高台库出租

高新区平库出租

高新区综合楼出租

高新区土地出租

高新区场地出租

高新区建设用地出租

高新区工业用地出租

关于本站- 广告投放- 联系我们- 版权隐私- 免责申明- 意见反馈 返回顶部

版权所有:北京万汇优企科技有限公司 未经授权禁止转载、摘编、复制或建立镜像,如有违反,追究法律责任.

电话:010-56877550

京ICP备14014070号-6