搜房源
发布信息
服务热线:15601084512

客服微信>>

手机站 北京 天津 河北 辽宁 山东 其他站 发布信息

河北厂库房网> 廊坊产业园出售>三河产业园出售

大产权工业产业园出售

编号:146860

区域:

廊坊- 三河

类别:

产业园出售

占地面积:

34110平米

价格:

面议

房屋面积:

层高:

6.1米

分割面积:

地址:

燕郊经济开发区迎宾北路678号长城重型机械制造有限公司

浏览:

徐天明

详细信息

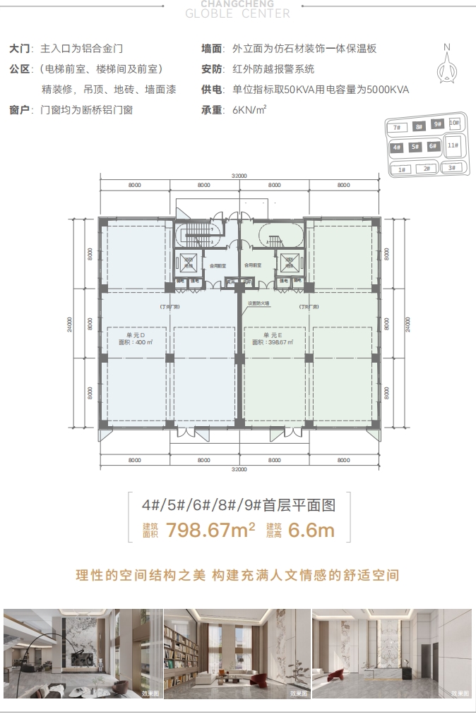
【名称】长城寰宇科创智谷(长城阙)

【产权】工业工地,50年产权,手续齐全,无税收要求

【概况】位于北部科学城核心区位,项目储备用地800亩,先期规划262亩,一期建设51.5亩,用地性质为一类工业用地。容积率2.0,一期开发用地51.15亩,总建筑面积68979.27㎡,共建设产品11栋招商136套房。充分满足企业轻生产、研发、展示、仓储、中式等各项要求,为企业快速发展保驾护航。

【面积】330-1860㎡工业平层

【户型】

企业复式

1#2#3#】楼栋共6层,单户为335平米,一梯一户, 一层层高6.6m、二层三层层高4.8m,四层-五层层高6.3m,六层6.1m,总建筑高度35.95m

4#5#6#8#9#】楼栋共6层,单户为395平米,一梯一户,一层层高6.6m、二层三层层高4.8m,四层-五层层高6.3m,六层6.1m总建筑高度35.95m

10#】楼栋共5层,单户为355平米,一梯一户,一层层高7.2m、四层-五层层高6.9m.总建筑高度35.95m

7#厂房共9层,地上建筑面积9482平米,一层层高5.1、二层-九层层高3.6m.总建筑高度35.95m

11#】楼栋共6层,地上建筑面积12163平米,一层层高6.6m,二层三层层高4.8m,四层-五层层高6.3m,六层6.1m.总建筑高度35.95m

【产权】独立产权,手续齐全

【区位】廊坊市三河市燕郊经济开发区迎宾北路678号长城重型机械制造有限公司

【层高】一层层高6.6m-7.2m、二层三层层高4.8m,四层-五层层高6.3m,六层6.1m

【交通】项目周边已形成“四横两纵双轨”体系,其中

四横:京平、京秦、通燕及徐尹路四条快速进京通道;

两纵:项目紧邻迎宾路、燕顺路纵向贯穿燕郊可迅速与北京接驳;

双轨:京唐城际已建成通车,燕郊作为出京首站,半小时直达北京站;项目紧邻地铁22号线潮白大街站(在建),预计2025年建成通车,燕郊至北京中心城区最短时间缩为32分钟。未来将实现与北京地铁6101417号线等多条线路无缝换乘。

首都机场:距离项目20公里,驱车20分钟。

北京国贸:距离项目35公里,驱车35分钟。

北京城市副中心:距离项目15公里,驱车15分钟。

北京望京:距离项目30公里,驱车30分钟。

图片展示

品牌企业

大兴区魏善庄厂库房园区招租(高台库,整租分租均可)

大兴区魏善庄厂库房园区招租(高台库,整租分租均可)

河北省定州全联科技工业园区厂房招商

河北省定州全联科技工业园区厂房招商

联东U谷-京津冀 厂房、库房、办公-可环评办照出租出售

联东U谷-京津冀 厂房、库房、办公-可环评办照出租出售

荣盛产业新城

荣盛产业新城

“和谷”系列产业园介绍

“和谷”系列产业园介绍

 地坪类别:环氧自流评.工业地坪,水泥自流评 地下车库地坪.防静电自流评.运动球场聚氨酯砂浆自流评.PVC地板

地坪类别:环氧自流评.工业地坪,水泥自流评 地下车库地坪.防静电自流评.运动球场聚氨酯砂浆自流评.PVC地板

天津宁河芦台工业园9000-15000平米厂库房出租

天津宁河芦台工业园9000-15000平米厂库房出租

相关站点

三河厂房出租

三河工厂出租

三河厂库房出租

三河库房出租

三河仓库出租

三河冷库出租

三河保鲜库出租

三河恒温库出租

三河高台库出租

三河平库出租

三河综合楼出租

三河土地出租

三河场地出租

三河建设用地出租

三河工业用地出租

关于本站- 广告投放- 联系我们- 版权隐私- 免责申明- 意见反馈 返回顶部

版权所有:北京万汇优企科技有限公司 未经授权禁止转载、摘编、复制或建立镜像,如有违反,追究法律责任.

电话:010-56877550

京ICP备14014070号-6