搜房源
发布信息
服务热线:15601084512

客服微信>>

手机站 北京 天津 河北 辽宁 山东 其他站 发布信息

河北厂库房网> 周边厂房出租>厂房出租

天津滨海新区汉沽临津产业园20000平米厂房出租/出售

编号:139619

区域:

周边-

类别:

厂房出租

占地面积:

22603平米

价格:

面议

建筑面积:

20350平米

车间面积:

20000平米

办公面积:

柱网跨度:

层高:

8.6米

现配电容量:

分割面积:

地址:

天津滨海新区汉沽临津产业园

浏览:

刘经理

详细信息

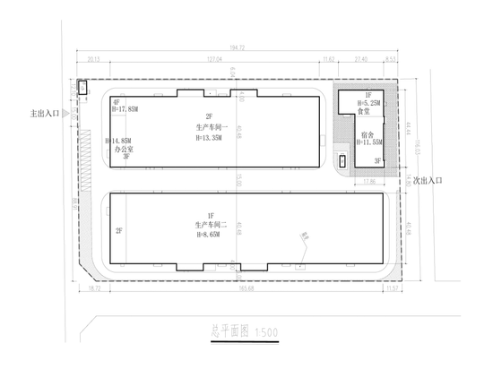
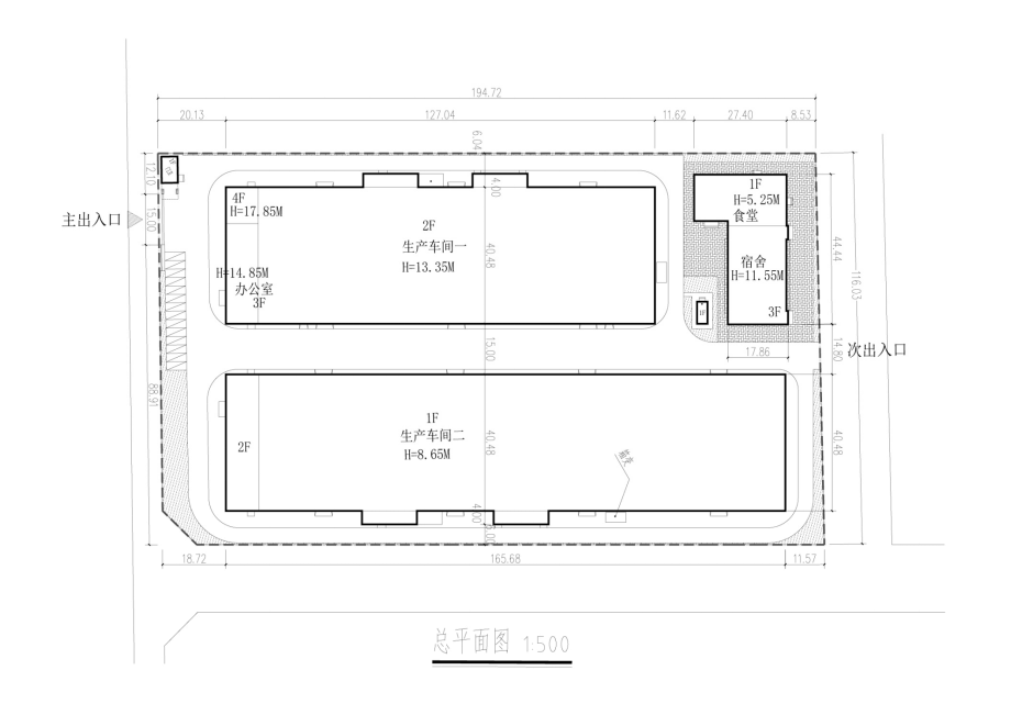
地理位置】厂房位于天津滨海新区临津产业园内,属于京津唐区纽核心区域.紧邻滨保高速、长深高速、塘承高速、津蓟高速、滨海高速、距近两个高速出口仅5公里,距离高铁站8公里,园区内有公交车,地理位置优越,交通方便。
【面积详情】独门独院,独栋二层+独栋单层+办公+生活区宿舍食堂

总占地面积:22603平米.总建筑面积:20350平米.

1.生产一车间10900平方米(两层有电梯),连接独立三层综合办公楼.

2.生产二车间7200万平方米(一层),连接独立二层综合办公楼

3.宿舍及食堂1900平方米.

4.门卫监控室42平方米.

5.消防水池及水泵房250平方米.

6.绿地1000平方米.

7.容积率:1.17.

【结构】:厂房钢结构,办公室、宿舍及厨房砖混结构

【层高】:单层车间高8.6米(可配天车),二层车间一层高8.6米,二层高5米.

【适合行业】家具制作、设备制造、金属制品、机械加工等行业.

园区租售均可(整体出租),产权:  已取得房产证  有意者电话咨询!


图片展示

品牌企业

大兴区魏善庄厂库房园区招租(高台库,整租分租均可)

大兴区魏善庄厂库房园区招租(高台库,整租分租均可)

河北省定州全联科技工业园区厂房招商

河北省定州全联科技工业园区厂房招商

联东U谷-京津冀 厂房、库房、办公-可环评办照出租出售

联东U谷-京津冀 厂房、库房、办公-可环评办照出租出售

荣盛产业新城

荣盛产业新城

“和谷”系列产业园介绍

“和谷”系列产业园介绍

 地坪类别:环氧自流评.工业地坪,水泥自流评 地下车库地坪.防静电自流评.运动球场聚氨酯砂浆自流评.PVC地板

地坪类别:环氧自流评.工业地坪,水泥自流评 地下车库地坪.防静电自流评.运动球场聚氨酯砂浆自流评.PVC地板

天津宁河芦台工业园9000-15000平米厂库房出租

天津宁河芦台工业园9000-15000平米厂库房出租

相关站点

厂房出租

工厂出租

厂库房出租

库房出租

仓库出租

冷库出租

保鲜库出租

恒温库出租

高台库出租

平库出租

综合楼出租

土地出租

场地出租

建设用地出租

工业用地出租

关于本站- 广告投放- 联系我们- 版权隐私- 免责申明- 意见反馈 返回顶部

版权所有:北京万汇优企科技有限公司 未经授权禁止转载、摘编、复制或建立镜像,如有违反,追究法律责任.

电话:010-56877550

京ICP备14014070号-6