搜房源
发布信息
服务热线:15601084512

客服微信>>

手机站 北京 天津 河北 辽宁 山东 其他站 发布信息

河北厂库房网> 唐山厂房出租>高新区厂房出租

唐山厂房出租(可按要求定制建筑,可环评办照)

编号:136288

区域:

唐山- 高新区

类别:

厂房出租

占地面积:

13320平米

价格:

面议

建筑面积:

8000平米

车间面积:

6000平米

办公面积:

6000平米

柱网跨度:

层高:

15米

现配电容量:

分割面积:

地址:

唐山高新区

浏览:

徐先生

详细信息

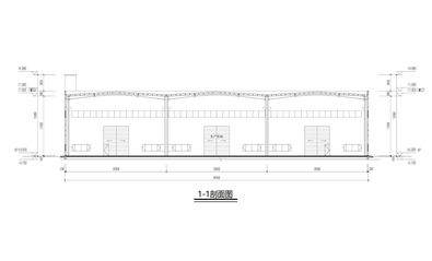
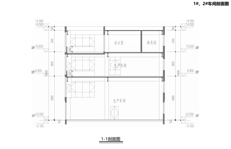
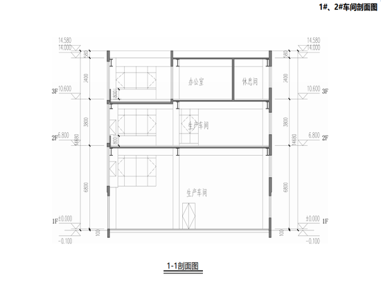
厂区占地20亩,拟建设两个3000平米厂房,共6000平米厂房,高15米,办公楼两个,每个四层,共6000平米,可以部分出租,也可分割出租,最低1000平米起租,可按用户要求配置定制建筑,(建筑外观不能变)可协助办照办环评。

位置:紧邻京唐城际铁路,唐山西站,唐山机场,高速路出口附近。交通便利,基础设施已完成。


图片展示

品牌企业

大兴区魏善庄厂库房园区招租(高台库,整租分租均可)

大兴区魏善庄厂库房园区招租(高台库,整租分租均可)

河北省定州全联科技工业园区厂房招商

河北省定州全联科技工业园区厂房招商

联东U谷-京津冀 厂房、库房、办公-可环评办照出租出售

联东U谷-京津冀 厂房、库房、办公-可环评办照出租出售

荣盛产业新城

荣盛产业新城

“和谷”系列产业园介绍

“和谷”系列产业园介绍

 地坪类别:环氧自流评.工业地坪,水泥自流评 地下车库地坪.防静电自流评.运动球场聚氨酯砂浆自流评.PVC地板

地坪类别:环氧自流评.工业地坪,水泥自流评 地下车库地坪.防静电自流评.运动球场聚氨酯砂浆自流评.PVC地板

天津宁河芦台工业园9000-15000平米厂库房出租

天津宁河芦台工业园9000-15000平米厂库房出租

相关站点

高新区厂房出租

高新区工厂出租

高新区厂库房出租

高新区库房出租

高新区仓库出租

高新区冷库出租

高新区保鲜库出租

高新区恒温库出租

高新区高台库出租

高新区平库出租

高新区综合楼出租

高新区土地出租

高新区场地出租

高新区建设用地出租

高新区工业用地出租

关于本站- 广告投放- 联系我们- 版权隐私- 免责申明- 意见反馈 返回顶部

版权所有:北京万汇优企科技有限公司 未经授权禁止转载、摘编、复制或建立镜像,如有违反,追究法律责任.

电话:010-56877550

京ICP备14014070号-6