搜房源
发布信息
服务热线:15601084512

客服微信>>

手机站 北京 天津 河北 辽宁 山东 其他站 发布信息

河北厂库房网> 唐山厂房出租>遵化厂房出租

河北唐山同创遵化厂区出租、招商*

编号:125378

区域:

唐山- 遵化

类别:

厂房出租

占地面积:

20000平米

价格:

面议

建筑面积:

13000平米

车间面积:

办公面积:

2000平米

柱网跨度:

24米

层高:

12.0米

现配电容量:

500KVA

分割面积:

地址:

遵化市龙山工业园区

浏览:

迟总

详细信息

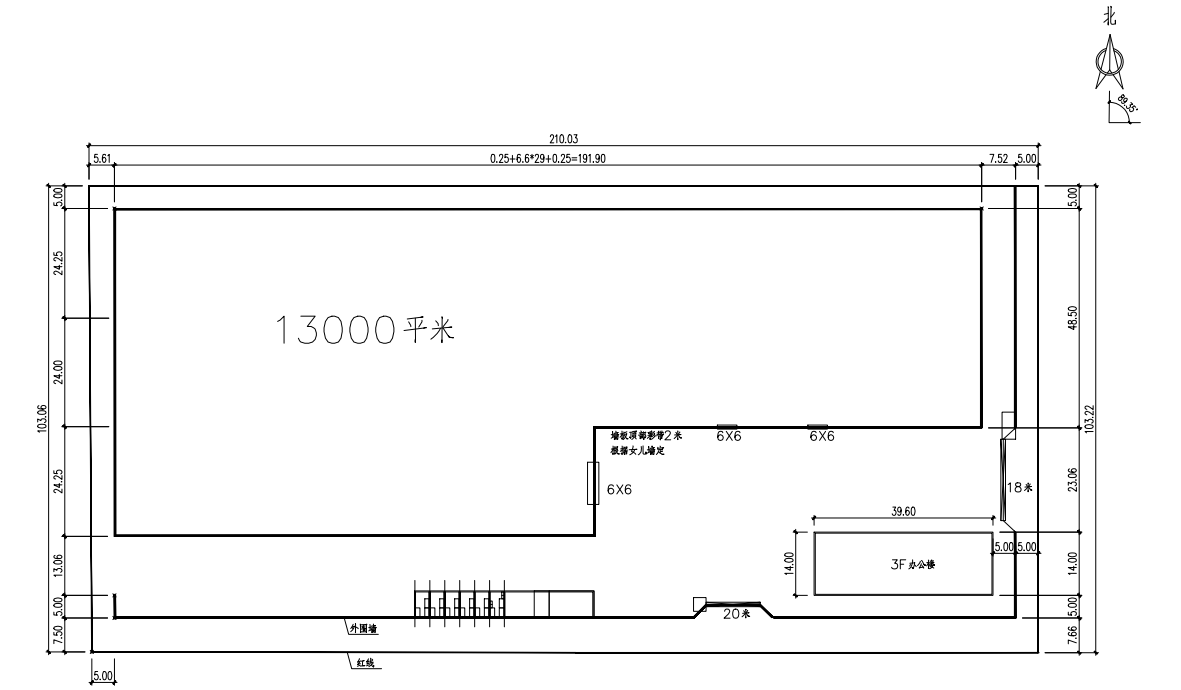
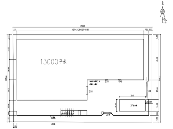
河北唐山同创遵化厂区20000出租、招商

本厂区即将竣工,总占地面积20000平米,建筑面积约13000平米(钢结构厂房高度12米),办公楼2000平米(层高4米,三层整分租均可。


主招金属结构类行业(建筑、土方、水电工程;加工、安装、销售金属结构、彩钢板、复合板、围挡板、门窗、集成房屋、机械设备、环保设备;建材、钢材、型材销售;机加工等)


位于河北省唐山市遵化市龙山工业园区交通便利,价格优惠,欢迎来电详谈!!!


图片展示

品牌企业

大兴区魏善庄厂库房园区招租(高台库,整租分租均可)

大兴区魏善庄厂库房园区招租(高台库,整租分租均可)

河北省定州全联科技工业园区厂房招商

河北省定州全联科技工业园区厂房招商

联东U谷-京津冀 厂房、库房、办公-可环评办照出租出售

联东U谷-京津冀 厂房、库房、办公-可环评办照出租出售

荣盛产业新城

荣盛产业新城

“和谷”系列产业园介绍

“和谷”系列产业园介绍

 地坪类别:环氧自流评.工业地坪,水泥自流评 地下车库地坪.防静电自流评.运动球场聚氨酯砂浆自流评.PVC地板

地坪类别:环氧自流评.工业地坪,水泥自流评 地下车库地坪.防静电自流评.运动球场聚氨酯砂浆自流评.PVC地板

天津宁河芦台工业园9000-15000平米厂库房出租

天津宁河芦台工业园9000-15000平米厂库房出租

相关站点

遵化厂房出租

遵化工厂出租

遵化厂库房出租

遵化库房出租

遵化仓库出租

遵化冷库出租

遵化保鲜库出租

遵化恒温库出租

遵化高台库出租

遵化平库出租

遵化综合楼出租

遵化土地出租

遵化场地出租

遵化建设用地出租

遵化工业用地出租

关于本站- 广告投放- 联系我们- 版权隐私- 免责申明- 意见反馈 返回顶部

版权所有:北京万汇优企科技有限公司 未经授权禁止转载、摘编、复制或建立镜像,如有违反,追究法律责任.

电话:010-56877550

京ICP备14014070号-6