搜房源
发布信息
服务热线:15601084512

客服微信>>

手机站 北京 天津 河北 辽宁 山东 其他站 发布信息

河北厂库房网> 周边厂房出租>厂房出租

秦皇岛经济技术开发区西区现有厂房诚意直租

编号:123283

区域:

周边-

类别:

厂房出租

占地面积:

42000平米

价格:

面议

建筑面积:

车间面积:

8736平米

办公面积:

1200平米

柱网跨度:

层高:

14.0米

现配电容量:

分割面积:

地址:

经济技术开发区西区龙海道与温泉湖路南

浏览:

郭总

详细信息

秦皇岛经济技术开发区西区现有厂房诚意直租


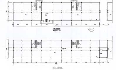
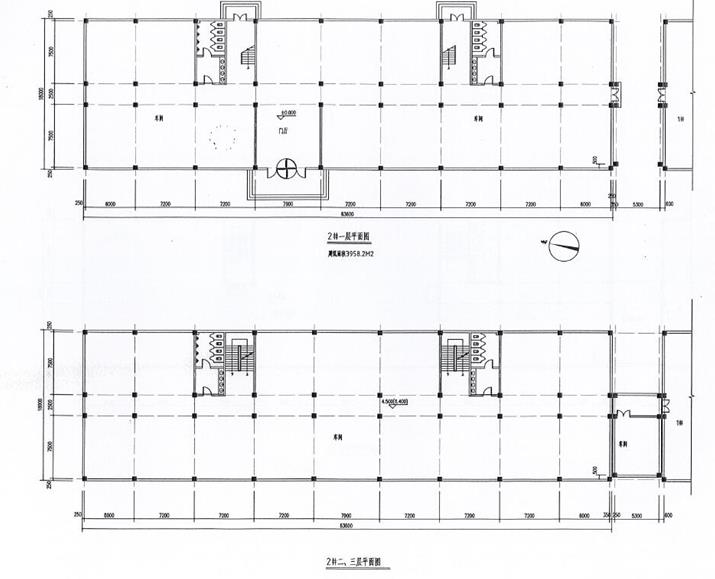
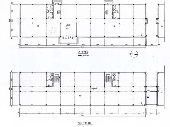
我司现有厂房诚意直租。厂房位于经济技术开发区西区龙海道与温泉湖路南,厂房为框架式结构,宽72米,
长120米,高14米,面积为8736平米,有20吨行车1台,10吨行车2台。
另有叠加框架式厂房7800平米,共计3层,高4米,内有3吨货梯。可做办公、生产、流水线、仓储等。
建筑为合法建筑,证件齐全,产权清晰,价格面议。
有意者请联系:郭先生 13903352855  欢迎致电致函!

图片展示

品牌企业

大兴区魏善庄厂库房园区招租(高台库,整租分租均可)

大兴区魏善庄厂库房园区招租(高台库,整租分租均可)

河北省定州全联科技工业园区厂房招商

河北省定州全联科技工业园区厂房招商

联东U谷-京津冀 厂房、库房、办公-可环评办照出租出售

联东U谷-京津冀 厂房、库房、办公-可环评办照出租出售

荣盛产业新城

荣盛产业新城

“和谷”系列产业园介绍

“和谷”系列产业园介绍

 地坪类别:环氧自流评.工业地坪,水泥自流评 地下车库地坪.防静电自流评.运动球场聚氨酯砂浆自流评.PVC地板

地坪类别:环氧自流评.工业地坪,水泥自流评 地下车库地坪.防静电自流评.运动球场聚氨酯砂浆自流评.PVC地板

天津宁河芦台工业园9000-15000平米厂库房出租

天津宁河芦台工业园9000-15000平米厂库房出租

相关站点

厂房出租

工厂出租

厂库房出租

库房出租

仓库出租

冷库出租

保鲜库出租

恒温库出租

高台库出租

平库出租

综合楼出租

土地出租

场地出租

建设用地出租

工业用地出租

关于本站- 广告投放- 联系我们- 版权隐私- 免责申明- 意见反馈 返回顶部

版权所有:北京万汇优企科技有限公司 未经授权禁止转载、摘编、复制或建立镜像,如有违反,追究法律责任.

电话:010-56877550

京ICP备14014070号-6